SCROLL
落ち着いたグレーの外観の上質感と、光と風の開放感が調和する心地よい暮らし。
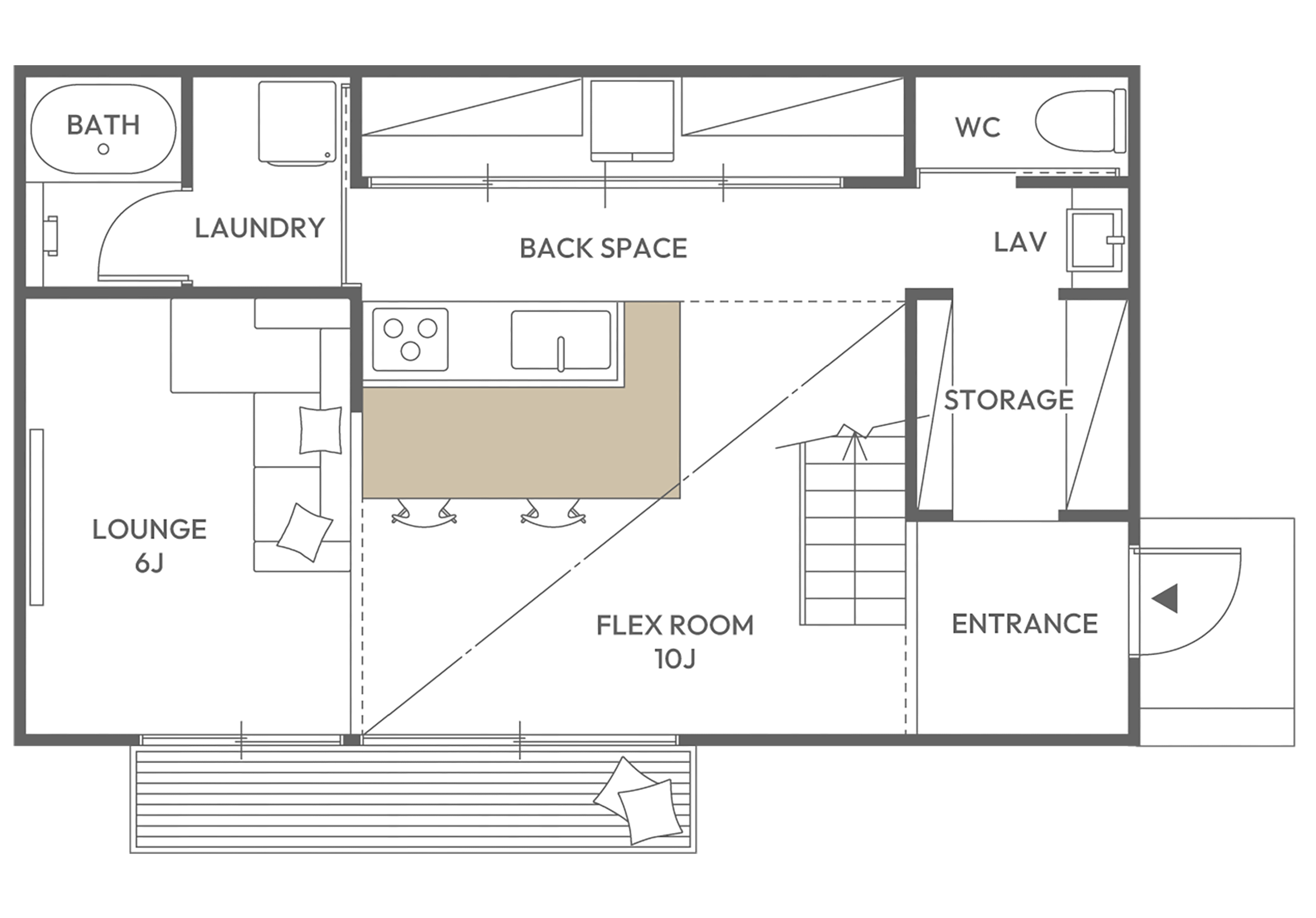
外観は、グレーの外壁に開口部がリズムを添え、落ち着いた印象の中に洗練された高級感を漂わせるデザイン。シンプルでありながら深みのある色合いが、住まい全体に静かな存在感を与えています。内部は、大開口を備えた吹抜が光と風を取り込み、広がりを強調します。天然木の豊かな素材感が空間に温もりを添え、開放的でありながら心地よく過ごせる空間です。
- 延べ床面積:85.28㎡(25.79坪)
- 参考価格
- 24,800,000円 (税込)
※上記価格は参考価格となります。
実際の販売価格は施工する工務店により異なります。
私の暮らし方!
FIND YOUR
FAVORITE STYLE!
あなたにピッタリのデザインスタイルを
診断してみよう!
DIAGNOSIS
診断する
質問に答えてスタイル診断!
3
QUESTION1
年齢を教えてください。
QUESTION2
性別を教えてください。
QUESTION3
お住まいの地域を教えてください。
決定
QUESTION4
気になる住まいは?
QUESTION5
家を建てるご予算は?(土地代別)
QUESTION6
あなたのタイプはどちらかというと?
QUESTION5
家を建てるご予算は?(土地代別)
QUESTION6
あなたのタイプはどちらかというと?
QUESTION5
家を建てるご予算は?(土地代別)
QUESTION6
あなたのタイプはどちらかというと?
Find Your Favorite Style!
あなたへのおすすめのスタイルは・・・
1/10
















